吉博力ProPlanner规划软件 吉博力的可靠规划
吉博力自主开发的ProPlanner规划软件,以先进的规划工具助您一臂之力。
吉博力ProPlanner专为满足管道工和卫浴公司的规划需求而量身定制,助其游刃有余地自行完成对中到大型项目的规划。
该规划模块涵盖了从饮用水、排水和安装系统(吉博力Duofix /吉博力GIS)到屋顶虹吸排水(吉博力Pluvia)等卫浴技术的方方面面。
规划模块
安装系统
简单快捷又高效的安装系统规划:
- 安装系统规划
- 吉博力Duofix和吉博力GIS产品系列
- 使用快速输入选项进行高效规划
- 简单快捷又高效的安装系统规划
- 用于3D详细规划模块的导出功能
- CAD导出界面(Autodesk® RealDWG®)
- 满足最新标准的吉博力产品
- 计算以吉博力指令和法规为依据
- 自动输出材料、备件、报价和裁剪清单
- 自动输出平面图、前视图和安装图

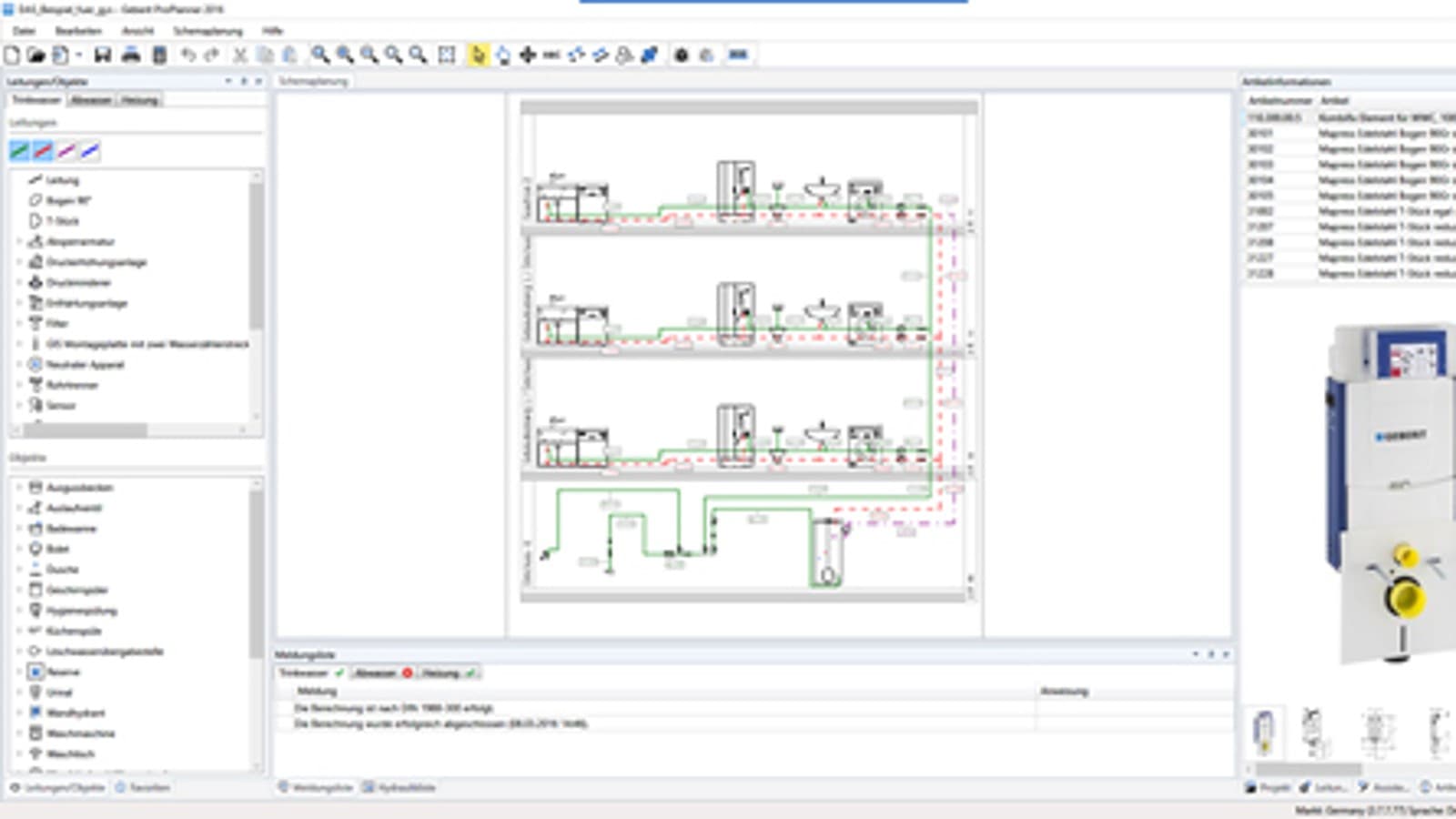
示意图规划
管道系统规划的详细图纸:
- 饮用水和排水系统的规划
- 吉博力Mepla、吉博力PushFit、吉博力Mapress不锈钢管道、吉博力Mapress铜镍管道、吉博力PE、吉博力Silent-PP和吉博力db20静音管道以及吉博力Silent-Pro产品系列
- 在示意图中进行规划
- 管道系统规划的详细图纸
- CAD导出界面(Autodesk® RealDWG®)
- 满足最新法规和标准的吉博力产品
- 根据国家/地区特定标准进行计算
- 自动输出材料、备件、排水工程学和报价清单
- 自动输出示意图

3D详细规划
卫浴单元的全面详细规划:
- 安装、饮用水、排水系统规划
- 吉博力Duofix、吉博力GIS、吉博力Mepla、吉博力PushFit、吉博力Mapress不锈钢管道、吉博力Mapress铜镍管道、吉博力PE、吉博力Silent-PP、吉博力db20静音管道以及吉博力Silent-Pro产品系列
- 在平面图、前视图和3D图中进行规划
- 卫浴单元的全面详细规划
- CAD导入和导出(Autodesk® RealDWG®)
- 基于CAD图纸直接规划
- 满足最新法规和标准的吉博力产品
- 计算以吉博力指令和法规为依据
- 自动输出材料、备件、报价和裁剪清单
- 自动输出平面图、前视图、3D和安装图

屋面排水
卓越的排水工程学设计、经济可靠的尺寸规划:
- 规划吉博力Pluvia屋顶虹吸排水
- 吉博力PE、吉博力db20静音管道和吉博力Pluvia产品系列
- 在管道安装图中进行规划
- 最佳的排水工程学设计、经济而可靠的尺寸规划
- CAD导入和导出界面(Autodesk® RealDWG®)
- CAD平面图上的屋顶面积计算
- 满足最新法规和标准的吉博力产品
- 根据国家/地区特定标准或吉博力法规进行计算
- 自动输出材料、排水工程学和报价清单
- 自动输出管道安装图

废水预处理
专注细节并与接头配合严密的排水系统规划:
- 排水系统规划
- 吉博力PE和吉博力db20静音管道产品系列
- 在平面图、前视图和3D图中进行规划
- 专注细节并与接头配合严密的排水系统规划
- CAD导入和导出界面(Autodesk® RealDWG®)
- 基于CAD图纸直接规划
- 满足最新法规的吉博力产品
- 以瑞士废水标准为依据进行计算
- 自动输出材料、备件、报价和裁剪清单
- 自动输出平面图、前视图、3D和安装图

软件下载和授权许可
软件许可
安装吉博力ProPlanner并首次注册后,您将获得许可密钥,该密钥将为您免费启用安装系统模块。
管道系统示意图、3D详细规划、屋面排水和废水预处理模块为必购项目。在参加软件培训课程之后,吉博力将免费为所有参与者提供该规划软件。如需其他信息和授权许可,请联系吉博力或您的吉博力销售顾问。
若获得公司版授权许可,则您可在贵公司不限次数地按需安装和激活ProPlanner。该软件向初学者和所有教育机构免费提供。
软件下载
下载最新版本吉博力ProPlanner规划软件。
系统要求
在下载规划软件之前,请检查是否满足必要的系统要求:
| 最低配置 | 推荐配置 | |
|---|---|---|
| 操作系统 | Windows 8.1 Windows 10(截至1809) | Windows 10(截至1809) |
| 处理器 | 英特尔或AMD多核处理器 | 英特尔或AMD多核处理器 |
| 内存 | 2GB | 4GB |
| 硬盘内存 | 3GB可用空间 | 6GB可用空间 |
| 显卡 | 64 MB,DirectX 9 | 256 MB,DirectX 9 |
| 显示器 | 水平分辨率1280像素,垂直分辨率900像素 | 水平分辨率1920像素 / 垂直分辨率1080像素 |
| 建议使用96 dpi(显示器分辨率) | ||
| 在线服务 | 需提供互联网接入 有效的电子邮件地址 | |
| 系统组件 | 包含在交付中并已自动安装: - Microsoft .NET 4.7 - Microsoft DirectX 9 |
软件培训课程
为了帮助您更高效地使用吉博力ProPlanner模块,我们在您所在的地区提供特别的软件研讨会和个人软件培训课程。